| 間取り | 間取り詳細 | 面積 | 賃料 | 管理費/共益費 | 敷金(保証金) | 礼金 | 採光向き |
|---|---|---|---|---|---|---|---|
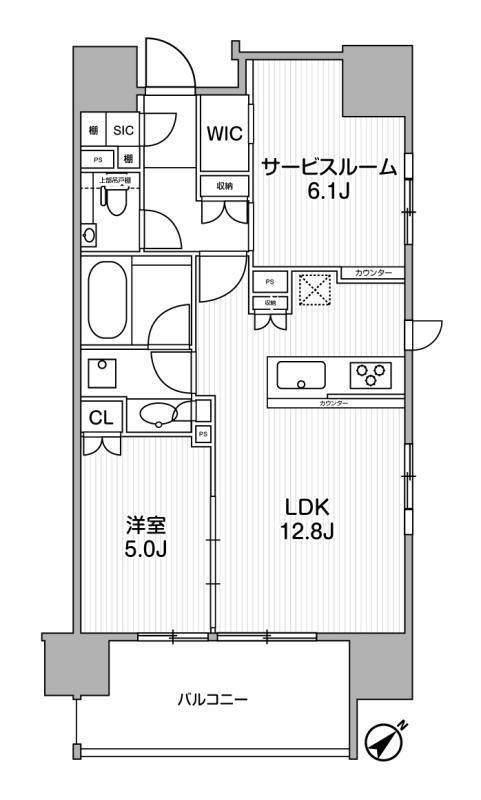
| 1SLDK | - | 54.23㎡ |
280,000 円 |
15,000円 | 280,000円 | 無料 | 南東 |
物件情報は代表的なお部屋を掲載しております。
建物内の別の間取りでも空室がある場合がございます。
※写真や図と現況が異なる場合は現況を優先させていただきます。
| 間取り | 1SLDK |
|---|---|
| 間取り詳細 | - |
| 物件種別 | マンション | ||
|---|---|---|---|
| 物件名 | ディームス渋谷本町 | ||
| 物件所在地 | 東京都渋谷区本町3丁目41-14 | ||
| 交通機関 |
|
||
| 周辺施設 |
|
||
| 特記事項 | ペット不可、ルームシェア不可 | ||
| 賃料 | 280,000円 | 管理費/共益費 | 15,000円 |
| 敷金 | 280,000円 | 礼金 | 無料 |
| フリーレント | - | 保険 | - |
| 間取り | 1SLDK | 面積 | 54.23㎡ |
| 採光向き | 南東 | 契約形態 | 定借契約 2年 |
| 所在階 | 4階 | 入居可能日 | 即日 |
| 総戸数 | 92戸 | 竣工月 | 2019年2月 |
| 建築構造 | RC | 建物階建 | 地上14階 |
| 駐車場 | - | 駐車料 | - |
| 火災保険 | - | 鍵交換代 | 24,200円 |
| 保証会社 |
-
|
||
| 諸経費 |
Goodプレミアムα(24Hサポートのみ) 入居時 15,000円 住宅総合保険(フレックス) 入居時 28,000円 Goodプレミアムα登録料 入居時 3,000円 |
||
| 設備 | ガス(都市ガス)、インターホン(TVモニター付き)、防犯カメラ、人感センサー、ダブルロック、オートロック、火災報知機、宅配ボックス、専用ゴミ置き場(あり)、フローリング、二重ガラス、ベランダ・バルコニー、下駄箱、バス・トイレ別(別室)、シャワー、追い焚き、浴室乾燥機、脱衣所、給湯、ミストサウナ、温水洗浄便座、洗面所独立、シャンプードレッサー、洗濯機置き場(室内)、コンロ設置済、コンロ口数(3)、コンロ種類(都市ガス)、グリル、食器洗乾燥機、システムキッチン、エアコン、エアコン台数(3)、床暖房、24H換気システム、地デジ(UHF)、光ファイバー、インターネット使用料無料 | ||
| 備考 | ※1年未満の解約はFR相当分の違約金が追加で発生します。 / ■キャンペーン■一部住戸限定!!AD200※法人契約時は礼金1ヶ月(家賃のみ) | ||
当社はお部屋探し(内見対応等)については対応できませんので、最寄りの仲介店舗へお問い合わせください。