株式会社Goodリアルエステート

  • お気に入り
  • プライバシーポリシー
  • サイトマップ

ディームス大手町ノース 6階

  • 駅近

部屋紹介

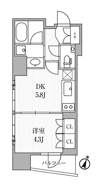
間取り 間取り詳細 面積 賃料 管理費/共益費 敷金(保証金) 礼金 採光向き
1DK - 28.34㎡

179,000

10,000円 179,000円 179,000円 南東

物件写真

物件情報は代表的なお部屋を掲載しております。
建物内の別の間取りでも空室がある場合がございます。
※写真や図と現況が異なる場合は現況を優先させていただきます。

部屋紹介

間取り 1DK
間取り詳細 -

物件概要・設備
情報登録日:2026年03月24日 情報更新日:2026年03月24日 次回更新予定日:2026年04月07日

物件種別 マンション
物件名 ディームス大手町ノース
物件所在地 東京都千代田区神田多町2丁目3
交通機関
  • 東京メトロ銀座線「神田駅」より徒歩4分
  • JR山手線「神田駅」より徒歩4分
  • JR中央線「神田駅」より徒歩4分
周辺施設
特記事項 高齢者相談、ペット不可、ルームシェア不可
賃料 179,000円 管理費/共益費 10,000円
敷金 179,000円 礼金 179,000円
フリーレント - 保険 -
間取り 1DK 面積 28.34㎡
採光向き 南東 契約形態 定借契約 2年
所在階 6階 入居可能日 2026/5/中
総戸数 66戸 竣工月 2020年2月
建築構造 RC 建物階建 地上12階 
駐車場 - 駐車料 -
火災保険 - 鍵交換代 24,200円
保証会社 -
諸経費 Goodプレミアムα(24Hサポートのみ) 入居時 15,000円
住宅総合保険(フレックス) 入居時 22,000円
Goodプレミアムα登録料 入居時 3,000円
設備 ガス(都市ガス)、インターホン(TVモニター付き)、防犯カメラ、人感センサー、オートロック、火災報知機、宅配ボックス、専用ゴミ置き場(あり)、角部屋、フローリング、二重ガラス、ベランダ・バルコニー、下駄箱、バス・トイレ別(別室)、シャワー、追い焚き、浴室乾燥機、脱衣所、給湯、温水洗浄便座、洗面所独立、洗濯機置き場(室内)、コンロ設置済、コンロ口数(2)、コンロ種類(都市ガス)、食器洗乾燥機、システムキッチン、カウンターキッチン、エアコン、エアコン台数(2)、24H換気システム、BS、地デジ(UHF)、インターネット使用料無料
備考 ※1年未満の解約はFR相当分の違約金が追加で発生します。

近隣マップ

当社はお部屋探し(内見対応等)については対応できませんので、最寄りの仲介店舗へお問い合わせください。

新着お知らせ