| 間取り | 間取り詳細 | 面積 | 賃料 | 管理費/共益費 | 敷金(保証金) | 礼金 | 採光向き |
|---|---|---|---|---|---|---|---|
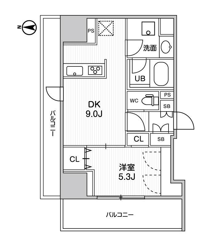
| 1LDK | - | 40.4㎡ | 成約済 | 成約済 | 成約済 | 成約済 | - |
物件情報は代表的なお部屋を掲載しております。
建物内の別の間取りでも空室がある場合がございます。
※写真や図と現況が異なる場合は現況を優先させていただきます。
| 間取り | 1LDK |
|---|---|
| 間取り詳細 | - |
| 物件種別 | マンション | ||
|---|---|---|---|
| 物件名 | エスタート入谷Ⅱ | ||
| 物件所在地 | 東京都台東区入谷2丁目39-2 | ||
| 交通機関 |
|
||
| 周辺施設 |
|
||
| 特記事項 | 高齢者相談、ペット不可、ルームシェア不可 | ||
| 賃料 | 成約済 | 管理費/共益費 | 成約済 |
| 敷金 | 成約済 | 礼金 | 成約済 |
| フリーレント | - | 保険 | - |
| 間取り | 1LDK | 面積 | 40.4㎡ |
| 採光向き | - | 契約形態 | 普通契約 2年 |
| 所在階 | 8階 | 入居可能日 | - |
| 総戸数 | 26戸 | 竣工月 | 2020年2月 |
| 建築構造 | RC | 建物階建 | 地上14階 |
| 駐車場 | - | 駐車料 | - |
| 火災保険 | - | 鍵交換代 | 成約済 |
| 保証会社 | - | ||
| 諸経費 | 成約済 | ||
| 設備 | ガス(都市ガス)、インターホン(TVモニター付き)、防犯カメラ、人感センサー、ダブルロック、オートロック、火災報知機、宅配ボックス、専用ゴミ置き場(あり)、フローリング、ベランダ・バルコニー、下駄箱、バス・トイレ別(別室)、シャワー、追い焚き、浴室乾燥機、脱衣所、給湯、温水洗浄便座、洗面所独立、洗濯機置き場(室内)、コンロ設置済、コンロ口数(3)、コンロ種類(都市ガス)、グリル、システムキッチン、カウンターキッチン、エアコン、エアコン台数(1)、24H換気システム、BS、CS、地デジ(UHF)、光ファイバー、インターネット使用料無料 | ||
| 備考 | 特約等につきましてはGoodリアルエステート仲介会社様専用サイトの部屋詳細をご確認下さい。 / FR1ヶ月(家賃のみ) ※1年未満の解約は短期解約違約金+FR期間の違約金、2年未満の解約はFR期間の違約金が発生します。 | ||
当社はお部屋探し(内見対応等)については対応できませんので、最寄りの仲介店舗へお問い合わせください。