| 間取り | 間取り詳細 | 面積 | 賃料 | 管理費/共益費 | 敷金(保証金) | 礼金 | 採光向き |
|---|---|---|---|---|---|---|---|
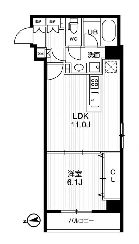
| 1LDK |
LDK 10.8畳
洋室 6.2畳 |
41.01㎡ | 成約済 | 成約済 | 成約済 | 成約済 | 西 |
物件情報は代表的なお部屋を掲載しております。
建物内の別の間取りでも空室がある場合がございます。
※写真や図と現況が異なる場合は現況を優先させていただきます。
| 間取り | 1LDK |
|---|---|
| 間取り詳細 | LDK 10.8畳 、 洋室 6.2畳 |
| 物件種別 | マンション | ||
|---|---|---|---|
| 物件名 | ・AR向島 | ||
| 物件所在地 | 東京都墨田区向島5丁目33-7 | ||
| 交通機関 |
|
||
| 周辺施設 |
|
||
| 特記事項 | ペット不可 | ||
| 賃料 | 成約済 | 管理費/共益費 | 成約済 |
| 敷金 | 成約済 | 礼金 | 成約済 |
| フリーレント | - | 保険 | - |
| 間取り | 1LDK | 面積 | 41.01㎡ |
| 採光向き | 西 | 契約形態 | 普通契約 2年 |
| 所在階 | 10階 | 入居可能日 | - |
| 総戸数 | 70戸 | 竣工月 | 2021年10月 |
| 建築構造 | RC | 建物階建 | 地上11階 |
| 駐車場 | - | 駐車料 | - |
| 火災保険 | - | 鍵交換代 | 成約済 |
| 保証会社 | - | ||
| 諸経費 | 成約済 | ||
| 設備 | ガス(都市ガス)、インターホン(TVモニター付き)、防犯カメラ、人感センサー、ダブルロック、オートロック、フローリング、照明器具、ベランダ・バルコニー、下駄箱、バス・トイレ別(別室)、シャワー、浴室乾燥機、脱衣所、給湯、温水洗浄便座、洗面所独立、シャンプードレッサー、洗濯機置き場(室内)、コンロ設置済、コンロ口数(3)、コンロ種類(都市ガス)、システムキッチン、エアコン、エアコン台数(2)、24H換気システム、インターネット使用料無料 | ||
| 備考 | 特約等につきましてはGoodリアルエステート仲介会社様専用サイトの部屋詳細をご確認下さい。 / 【法人契約の場合】礼金1ヶ月追加となります。【外国籍の方の場合】エポスグローバルプランの利用かつ敷金1ヶ月追加となります。【AD振替】AD1減額でFR1(家賃のみ)に振替可能です。【AD2⇒AD3へ増額】2024年5発中の契約に限ります。 | ||
当社はお部屋探し(内見対応等)については対応できませんので、最寄りの仲介店舗へお問い合わせください。